CLERMONT FERRAND
628 € /mois HC
Location Appartement - 42,70m² - 2 pièce(s)
Ref : INTENCITY-A307-137
Inten'City
MAJ : 24/11/2025
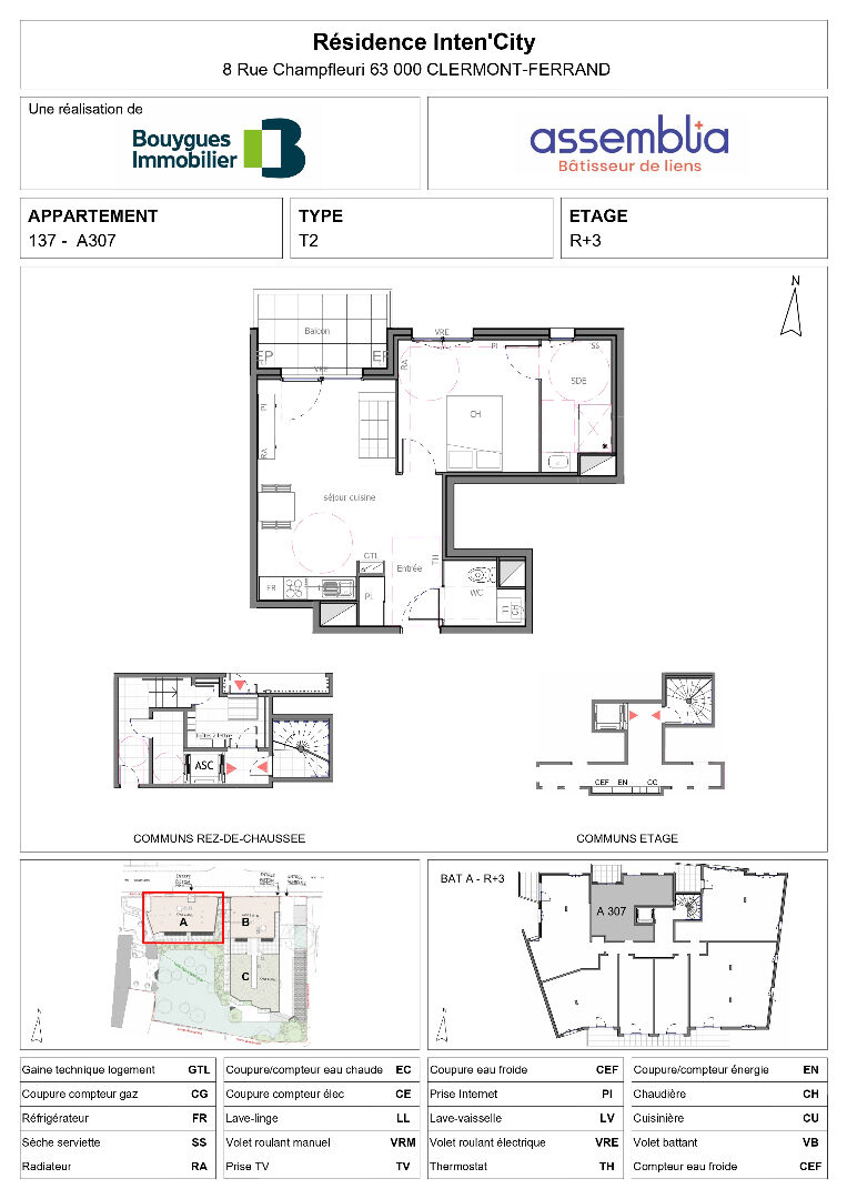
Appartement T2 Champfleuri Clermont-Ferrand
Appartement
42,70 m²
2 pièce(s)-
1 chambre(s)
Couvert
Située dans un quartier dynamique à deux pas de la place des Bughes, la toute nouvelle résidence Inten'City vous offre un cadre de vie pratique et agréable. A quelques minutes du centre-ville (place de Jaude à 15 mn), des transports en commun et des commerces, vous profiterez d'appartements neufs, disponibles en location, pensés pour votre quotidien, au sein d'espaces verts accueillants composés d'aires de jeux et zones sportives. Venez découvrir ce lumineux T2 de 42,70 m², situé au 3? étage de la résidence Inten'City. Conçu pour votre confort, il offre une pièce de vie agréable et baignée de lumière grâce à ses larges baies vitrées donnant sur un balcon idéal pour vos moments de détente. La cuisine ouverte, entièrement aménagée et équipée d'une plaque de cuisson ainsi que d'une hotte, optimise l'espace et crée une atmosphère conviviale. La chambre, fonctionnelle et cosy, complète ce logement. La salle d'eau est équipée d'un meuble vasque, d'un miroir et d'une douche, tandis que les WC sont séparés pour plus de praticité. Un parking boxé en sous-sol est également inclus. Profitez d'un cadre de vie central, à proximité immédiate des transports, commerces et espaces verts, et à quelques minutes seulement de la place de Jaude. Chauffage individuel gaz - DPE C- Accès PMR - Connexion Internet : Fibre optique. Disponibilité : Décembre 2025 Montant du loyer H.C. avec stationnement = 628.23 euros Montant des charges (électricité et entretien des parties communes, vmc, eau froide, entretien des chaudières, entretien des espaces verts, ascenseur, ordures ménagères ) = 70.96 euros Le + de Domia = Aucun frais d'agence - Aucun frais de dossier Dépôt de garantie = 1 mois de loyer hors charges Les informations sur les risques auxquels ce bien est exposé sont disponibles sur le site Géorisques : www.georisques.gouv.fr
Général
Loyer :
628 €
Type loyer :
HC
Dépot de garantie :
580€
Frais d'agence :
0€
Type de bien :
Appartement
Géolocalisation
Code postal :
63100
Résidence :
Inten'city
Secteur :
Champfleuri
Nombre d'étage total :
5
Numéro d'étage :
3
BUS :
2 min
Ecole :
1 min
Gare :
7 min
Autoroute :
5 min
Coproprieté
Bien en copropriété :
Oui
Dont lots d'habitation :
65
Diagnostics
Diagnostic énergétique :
98 kWhEP/m².an
Consommation énergétique
Gaz effet de serre :
15 kgéqCO2/m².an
Surfaces
Surface :
42,70 m²
Surface terrain :
0,00 m²
Surface séjour :
0,00 m²
Intérieur
Etat général :
Excellent
Cuisine :
Ouverte Equipée
Exposition du séjour :
Ouest
Type chauffage :
Individuel
Mode chauffage :
Gaz
Chambre(s) :
1
Nombre de pièce(s) :
2
Salle(s) de bain :
0
Salle(s) d'eau :
1
WC :
1
Clair :
Oui
Calme :
Oui
Extérieur
Année de construction :
2025
Etat extérieur :
Excellent
Neuf - Ancien :
Neuf
Fenêtre :
PVC Double Vitrage
Volets :
PVC Roulant
Assainissement :
Tout à l'égout
Autres
Interphone :
Oui
Ascenseur(s) :
Oui
Sous sol :
0
Type de stationnement :
Couvert
Domia
13 boulevard Léon Jouhaux
63100 CLERMONT-FERRAND
Ce bien vous intéresse ?
Contactez un conseiller en immobilier Domia







