VENDAT

224 900 €

Vente Maison - 84,97m² - 4 pièce(s)

Ref : VENDAT03

Le Champ du Four

MAJ : 27/03/2026

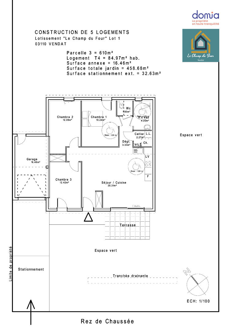
Maison Vendat 4 pièce(s) 84.97 m2


  • Maison

  • 84,97 m²

  • 4 pièce(s)

  • 3 chambre(s)

  • 0

Devenez propriétaire aux portes de Vichy ! Imaginez votre future maison, nichée dans un cadre calme et résidentiel, à quelques minutes seulement des services du quotidien et des atouts de l'agglomération vichyssoise. Bienvenue au Champ du Four, un petit ensemble intimiste de 5 maisons T4 imaginées pour vous offrir confort, sérénité et une vraie qualité de vie. Votre nouvelle adresse, pensée pour vous. Chaque maison vous propose : - 85 m² fonctionnels et lumineux - un jardin privatif, pour respirer, jardiner ou regarder les enfants jouer - un stationnement privatif, pour plus de confort au quotidien - un plain-pied optimisé, avec trois chambres, un bel espace de vie et une ouverture sur l'extérieur > Un prix accessible grâce à un dispositif innovant et sécurisant : le PSLA ( location-accession) ! > La douceur de vivre à Vendat Située aux portes de Vichy, Vendat conjugue nature, esprit village et dynamisme local. Ici, on respire, on profite, on se projette. Le Champ du Four, c'est l'opportunité rare de devenir propriétaire dans un cadre idyllique, à taille humaine. Un lieu où l'on pose ses valises, et où chaque journée devient un peu plus belle. > Livraison estimée au 1er trimestre 2028 Les + Domia : Dispositif PSLA (location-accession)*, programme éligible PTZ, logements livrés clés en mains, exonération de taxe foncière pendant 15 ans, frais de notaire réduits, TVA à 5,5%, aucun frais d'agence? *Location-Accession : dispositif d'accession à la propriété progressif (sous conditions de ressources), rassurant et sécurisé. Un achat « serein » avec de nombreux avantages.

Général

Prix :

224 900 €

Loyer :

723€

Type de bien :

Maison

Géolocalisation

Code postal :

03110

Résidence :

Le champ du four

Nombre d'étage total :

0

Numéro d'étage :

0

Crêche :

5 min

Ecole :

5 min

Gare :

10 min

Autoroute :

5 min

Coproprieté

Bien en copropriété :

Non

Surfaces

Surface :

84,97 m²

Surface terrain :

610,00 m²

Surface séjour :

0,00 m²

Intérieur

Etat général :

Excellent

Cuisine :

Ouverte

Exposition du séjour :

Sud - Ouest

Type chauffage :

Individuel

Mode chauffage :

PompeChaleur

Chambre(s) :

3

Nombre de pièce(s) :

4

Salle(s) de bain :

0

Salle(s) d'eau :

1

WC :

1

Clair :

Oui

Calme :

Oui

Extérieur

Année de construction :

2026

Etat extérieur :

Excellent

Neuf - Ancien :

Neuf

Fenêtre :

PVC Double Vitrage

Isolation :

Oui

Volets :

PVC Roulant

Assainissement :

Tout à l'égout

Autres

Ascenseur(s) :

Non

Garage(s)/Boxe(s) :

1

Nombre place(s) parking :

1

Type de stationnement :

0

Domia
13 boulevard Léon Jouhaux
63100 CLERMONT-FERRAND

Ce bien vous intéresse ?
Contactez un conseiller en immobilier Domia

FINANCER L'ACHAT D'UN BIEN