VENDAT
224 900 €
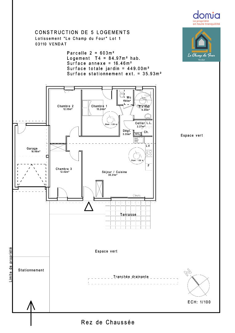
Vente Maison - 84,97m² - 4 pièce(s)
Ref : VENDAT02
Le Champ du Four
MAJ : 21/01/2026
Maison Vendat 4 pièce(s) 84.97 m2
Maison
84,97 m²
4 pièce(s)-
3 chambre(s)
0
Devenez propriétaire aux portes de Vichy ! Imaginez votre future maison, nichée dans un cadre calme et résidentiel, à quelques minutes seulement des services du quotidien et des atouts de l'agglomération vichyssoise. Bienvenue au Champ du Four, un petit ensemble intimiste de 5 maisons T4 imaginées pour vous offrir confort, sérénité et une vraie qualité de vie. Votre nouvelle adresse, pensée pour vous. Chaque maison vous propose : - 85 m² fonctionnels et lumineux - un jardin privatif, pour respirer, jardiner ou regarder les enfants jouer - un stationnement privatif, pour plus de confort au quotidien - un plain-pied optimisé, avec trois chambres, un bel espace de vie et une ouverture sur l'extérieur > Un prix accessible grâce à un dispositif innovant et sécurisant : le PSLA ( location-accession) ! > La douceur de vivre à Vendat Située aux portes de Vichy, Vendat conjugue nature, esprit village et dynamisme local. Ici, on respire, on profite, on se projette. Le Champ du Four, c'est l'opportunité rare de devenir propriétaire dans un cadre idyllique, à taille humaine. Un lieu où l'on pose ses valises, et où chaque journée devient un peu plus belle. > Livraison estimée au 1er trimestre 2028 Les + Domia : Dispositif PSLA (location-accession)*, programme éligible PTZ, logements livrés clés en mains, exonération de taxe foncière pendant 15 ans, frais de notaire réduits, TVA à 5,5%, aucun frais d'agence? *Location-Accession : dispositif d'accession à la propriété progressif (sous conditions de ressources), rassurant et sécurisé. Un achat « serein » avec de nombreux avantages.
Général
Prix :
224 900 €
Loyer :
723€
Type de bien :
Maison
Géolocalisation
Code postal :
03110
Résidence :
Le champ du four
Nombre d'étage total :
0
Numéro d'étage :
0
Crêche :
5 min
Ecole :
5 min
Gare :
10 min
Autoroute :
5 min
Coproprieté
Bien en copropriété :
Non
Surfaces
Surface :
84,97 m²
Surface terrain :
603,00 m²
Surface séjour :
0,00 m²
Intérieur
Etat général :
Excellent
Cuisine :
Ouverte
Exposition du séjour :
Sud - Ouest
Type chauffage :
Individuel
Mode chauffage :
PompeChaleur
Chambre(s) :
3
Nombre de pièce(s) :
4
Salle(s) de bain :
0
Salle(s) d'eau :
1
WC :
1
Clair :
Oui
Calme :
Oui
Extérieur
Année de construction :
2026
Etat extérieur :
Excellent
Neuf - Ancien :
Neuf
Fenêtre :
PVC Double Vitrage
Isolation :
Oui
Volets :
PVC Roulant
Assainissement :
Tout à l'égout
Autres
Ascenseur(s) :
Non
Garage(s)/Boxe(s) :
1
Nombre place(s) parking :
1
Type de stationnement :
0
Domia
13 boulevard Léon Jouhaux
63100 CLERMONT-FERRAND
Ce bien vous intéresse ?
Contactez un conseiller en immobilier Domia


